VENDITA/AFFITTO Ufficio Blocco 2A Gall.A

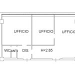
Ufficio luminoso e ben tenuto di circa 100 mq, suddiviso in tre ambienti, dotato di servizio igienico e aria condizionata.

Dettagli

  • Blocco: Blocco 4B
  • Lotto: Galleria A
  • Indirizzo: Galleria A
  • Destinazione: Ufficio
  • Tipologia: Affitto / Vendita

Riferimenti