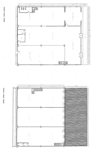
Capannone di 1500 mq con n.2 grandi soppalchi e pensilina chiusa. Servizi igienici sia al piano terra che in soppalco.
La movimentazione e lo scarico delle merci risulta agevole. Appena ristrutturato, ottimo stato interno.
Dettagli
- Blocco:
- Lotto:
- Indirizzo:
- Destinazione: Magazzino
- Tipologia: Affitto
Riferimenti
- Referente: Clara - Grandi Servizi Immobiliari
- Mobile Phone: 3923396904
- Phone:
- Email: documenti@centerstudiogroup.it